
电机振动给料机简介
自同步惯性振动给料机广泛用于矿山、冶金、煤炭、建材、轻工、化工、电力、粮食等各行业中,用以把块状、颗粒状及粉状物料从贮料仓或漏斗中均匀连续或定量地给到受料装置中去。如向破碎、选煤、筛分、运输、包装机械等给料、配料等。
电机振动给料机具有体积小、重量轻、结构简单、安装维修方便、给料量大、效率高、噪音低、耗电省、对各种物料适应性强、运行稳定并可无级调节给料量等优点。
电机振动给料机选型
1、生产率的确定:本系列自同步惯性振动给料机的生产率是以河沙为标准物料给出的(堆比重为1.6t/m3)。当物料堆比重大于1.6t/m3时,其产量可按额定值选?。坏蔽锪系亩驯戎卦?.2-1.6t/m3时,其产量可达到额定产量的0.9-1.0倍。当物料堆比重在0.8-1.2t/m3时,其产量可达到额定值的0.8-0.9倍。物料堆比重小于1.6t/m3时,须适当增加料层厚度,以提高产量。 对于振动给料机难于输送的物料(如滑石粉、钛白粉、白泥、面粉、粘土等),以及含水量较大的亲水性物料,则应根据试验确定产量。必要时将槽体适当倾斜安装(一般向下倾斜10-15°),以增加给料量。
2、控制箱的选择:本系列给料机配套反接制动控制箱,它可使给料机在停车时快速?;?,使给料机迅速通过共振区,避免过大振幅对机器造成损害。该控制箱具有过流、过压、断相等?;すδ?,另可根据工艺要求,增加能耗制动、快慢加料、远程控制及无级变频调速等功能。用户在订购时请注明。
3、给料机使用条件:
(1)环境温度不超过+40℃;
(2)在环境温度为20±5℃时,周围介质相对湿度不大于85%;
(3)周围没有爆炸危险介质;
(4)周围没有严重腐蚀及影响电气绝缘的介质。
在选型时考虑到空间位置限制,电机安装方式分为两种,一种为电机两侧安装,另一种为电机后置式安装。
技术参数
本电机振动给料机产品执行标准JB/T7555-94《GZG惯性振动给料机》,振动电机执行标准JB5330-91《振动源三相异步电动机》。
工艺配置
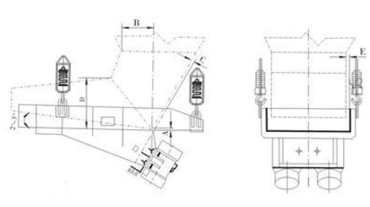
电机振动给料机设计时未考虑仓压的影响,为保证给料机的正常运行,必须尽量减少仓压对给料机的影响。因此在设计溜嘴时,应用溜嘴的后侧板承担料柱的垂直压力。溜嘴形式及配置尺寸可参考图及表中数值。
苏公网安备 32062102000184号